Page suivante
Page précédente
Saint-Pierre (97410)

Villa 4 pièce(s) 3 chambre(s) 106 m²

1
296 m²
1
477 000 €
Réf 261951

Si vous m'adoptez…

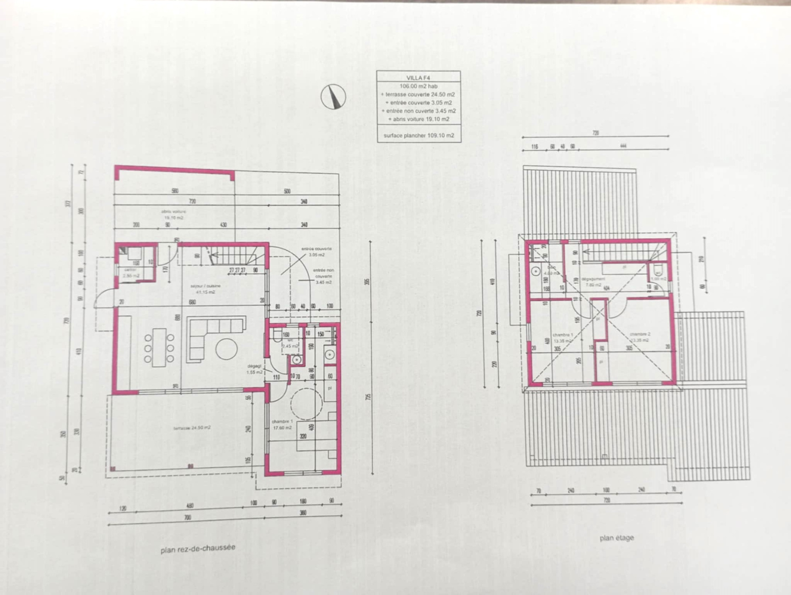
Je suis une belle villa T4 de standing, en cours de construction. Je mesure environ 106 m² habitables sur une parcelle de 346 m².

Je dispose de 2 chambres à l'étage avec vue mer, une belle salle de bains et un WC indépendant.

Au rez-de-chaussée, ma pièce de vie de 41 m² est couplée à une belle cuisine aménagée et équipée, un cellier, une suite parentale de 17,60 m², un WC indépendant et une terrasse de 24,50 m².

Je dispose de rideaux électriques pour plus de sécurité, et mon toit sera couvert de tôles en aluminium en raison de la proximité de l’océan.

Mon jardin sera piscinable pour vous offrir un maximum de plaisir.

Rien n'a été laissé au hasard pour satisfaire la famille la plus exigeante.

Venez vite m'adopter…

Mon prix est de 477 000 €.

Les honoraires d'agence sont à la charge du vendeur.

Les informations sur les risques auxquels ce bien est exposé sont disponibles sur le site Géorisques : www.georisques.gouv.fr

Retrouvez nos maisons, appartements, terrains… en vente ou en location à la Réunion, dans notre agence immobilière.

Bilan énergétique

Diagnostics énergetiques
A propos de ce bien Caractéristiques de ce bien
  • Surface 106 m²
  • carrez 106 m²
  • terrain 296 m²
  • séjour 41 m²
  • 3 chambre(s)
  • 1 salle(s) de bain
  • construit en 2026
  • cuisine américaine (semi-équipée)
  • 1 garage(s)
  • 1 niveau(x)
  • vue MER
  • terrasse
  • piscinable
  • accès handicapé

Composition

Composition de ce bien

Rez-de-chaussée

  • chambre 17.60 m²
  • chambre 13.35 m²
  • chambre 13.35 m²
  • salon/sejour 41.15 m²
  • salle de bain 4.80 m²

Info copro

Copropriété
  • Copropriété Oui
  • Nombre de lots 2

Financier

Informations financières
Prix de vente 477 000 € Les honoraires d'agence seront intégralement à la charge du vendeur

Simulation

Calcul des mensualités
* Champs obligatoires
ADOPTE UN TOIT Agence